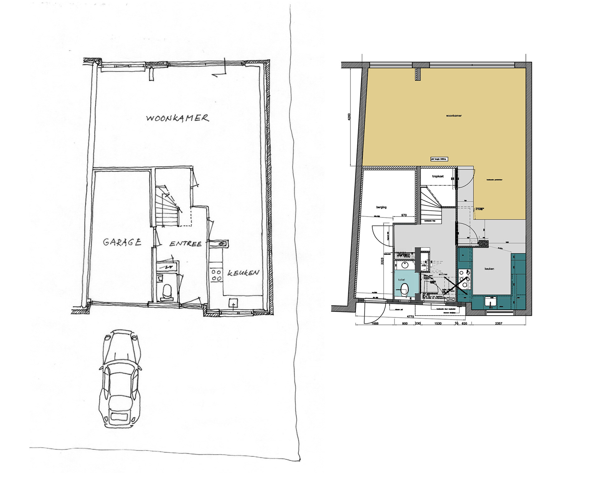
De opdrachtgevers woonden prima maar vonden de keuken naar verhouding te klein. Een uitbouw aan de voorzijde werd door de gemeente niet toegestaan waarna we het plan hebben gelanceerd om het toilet en de entree naar de garage op te schuiven. Op deze manier was het mogelijk een u-vormige keuken te ontwerpen en meteen de gehele begane grond onder handen te nemen. Goedkoper dan een uitbouw uiteindelijk.